Ter. residenziale in vendita

Corigliano-Rossano, C/da Petraro - Petraro-Varia De Franchis
€ 42.000
4 locali 4 locali
435 Mq 435 Mq
2 bagni 2 bagni

Ter. residenziale in vendita

Corigliano-Rossano, C/da Petraro - Petraro-Varia De Franchis

Descrizione annuncio

- C/da Petraro.

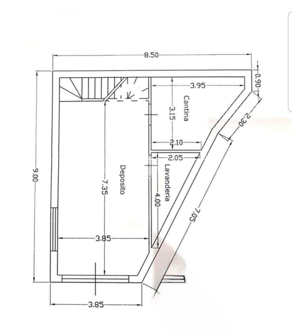
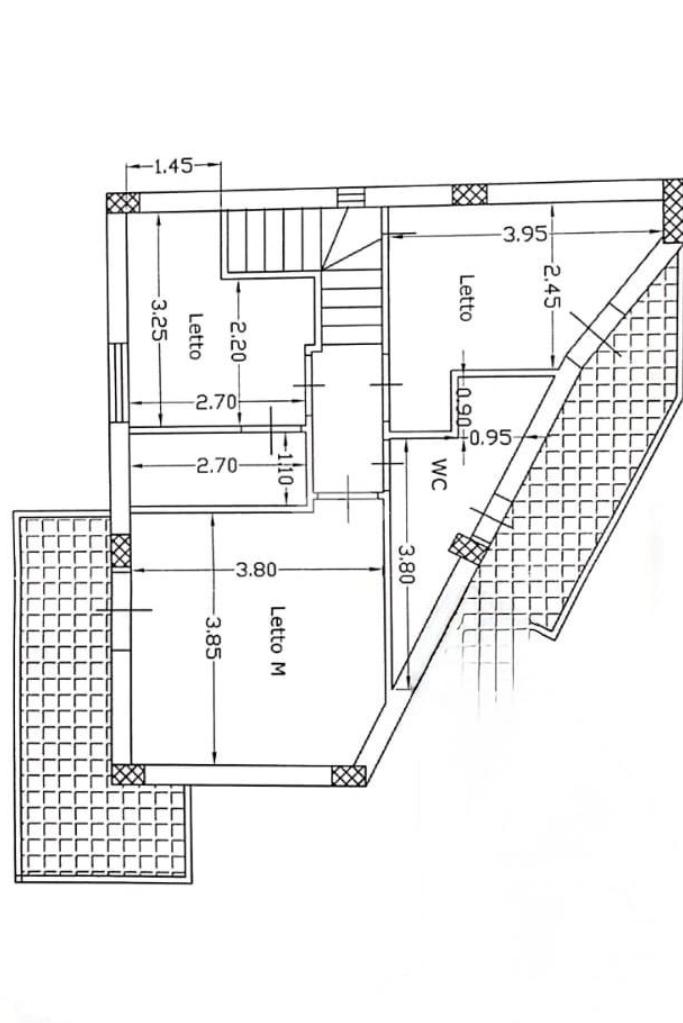
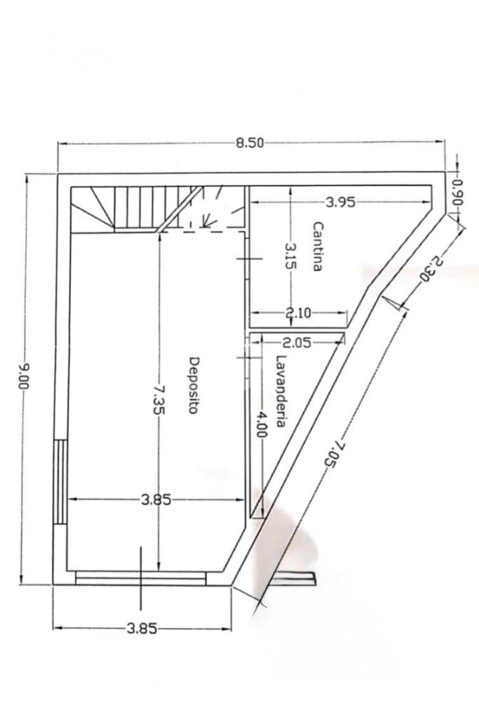
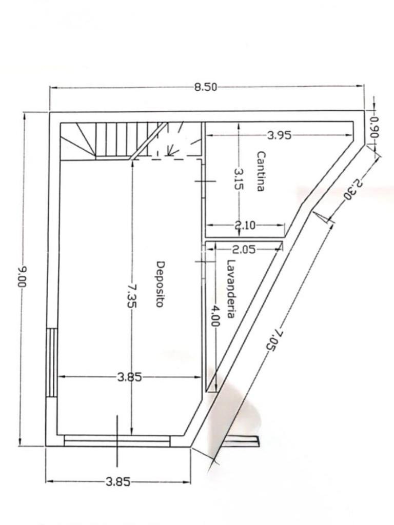
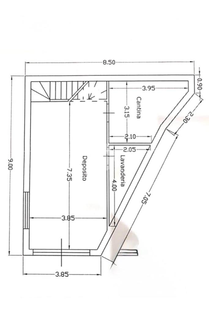
Vendesi terreno edificabile completamente pianeggiante di . 435mq con progetto gia' approvato di una villa singola.

Completamente indipendente la soluzione si svilupperebbe su due livelli ognuno dei quali di . 40 mq, oltre ad una taverna/deposito al piano semi interrato di ulteriori 40mq.

Il giardino di 300 mq . circonderebbe l' immobile nella sua interezza in modo da preferire un'esposizione piuttosto che un'altra a secondo della stagione.

Il terreno gode di ottima esposizione in un contesto caratterizzato da villette residenziali ed il fabbricato nascerebbe adiacente alla strada principale.

Per appuntamenti i nostri incaricati sono disponibili dal lunedì al venerdì dalle ore 9.00 alle 13.00 e dalle 16.00 alle 20.00 e il sabato dalle 9.00 alle 13.00.

A tua disposizione uno staff di consulenza creditizia in grado di proporti il mutuo o il finanziamento più adatto alle tue necessità.

Contattateci per fissare un incontro gratuito nei nostri uffici.

Ogni agenzia ha un proprio titolare ed è autonoma.

Mostra tutto

Nelle vicinanze

Negozi Negozi
P.E.A.M.
2,4 Km
Ristoranti Ristoranti
Ristoranti
2,4 Km
Mostra tutto

Caratteristiche

Rif.:
61167377
Piano:
Basso di 3
Totale piani:
3
Box:
1
Posti auto:
1
Camere da letto:
3
Mostra tutto
Prezzo Prezzo
€ 42.000
Rata mutuo Rata mutuo
€ 200 / mese
Spese annue Spese annue
€ 0
Proponi il tuo prezzoProponi il tuo prezzo

Classe Energetica

B
B
B
B
B
B
B
B
B
EP globale non rinnovabile:
1.00 kW h/m² anno
EP globale rinnovabile:
1.00 kW h/m² anno
EP invernale del fabbricato:
EP estiva del fabbricato:
Anno di costruzione:
2026
Riscaldamento:
Autonomo
Tipo impianto:
Ad aria
Tipo alimentazione:
Aria

Ti interessa visionare l'immobile?

Fissa un appuntamento  Fissa un appuntamento

Richiedi informazioni

Clicca su Leggi per aprire l'informativa
* Questi campi sono obbligatori

Calcola il tuo mutuo

Semplice e senza impegno
Anticipo

( % )
Mutuo

( % )

pochi semplici passi

inserisci i tuoi dati
Questionario completato
Grazie per aver richiesto un appuntamento senza impegno con un nostro Consulente del Credito e Assicurativo.

Hai inserito correttamente tutti i dati necessari e a breve riceverai una e-mail con un link da convalidare per inviare i tuoi dati.
Affiliato
Studio Rossano 1 Srl
Viale Margherita, 213 87064 Corigliano-Rossano (CS)

Il nostro staff


  • Salvatore Ferraro
    Affiliato

  • Maria De Patto
    Collaboratrice
Viale Margherita, 213 87064 Corigliano-Rossano (CS)
Zona: Rossano
Mostra su mappa
Orari: da lunedì al venerdì 08.45 - 13.00 / 15.30 - 19.30; sabato 08.45 - 13.00
Affiliato
Studio Rossano 1 Srl
Viale Margherita, 213 87064 Corigliano-Rossano (CS)

2026 Tecnocasa Franchising S.p.A. - P. IVA 08365160152 - Via Monte Bianco 60/A 20089 Rozzano (MI). Ogni agenzia ha un proprio titolare ed è autonoma. Privacy policy | Policy utilizzo | Cookie policy