Complesso in vendita

Corigliano-Rossano, Contrada Toscano Ioele - Rossano
€ 420.000
1 locale 1 locale
700 Mq 700 Mq
4 bagni 4 bagni

Complesso in vendita

Corigliano-Rossano, Contrada Toscano Ioele - Rossano

Descrizione annuncio

- C/da Toscano Ioele . 106).

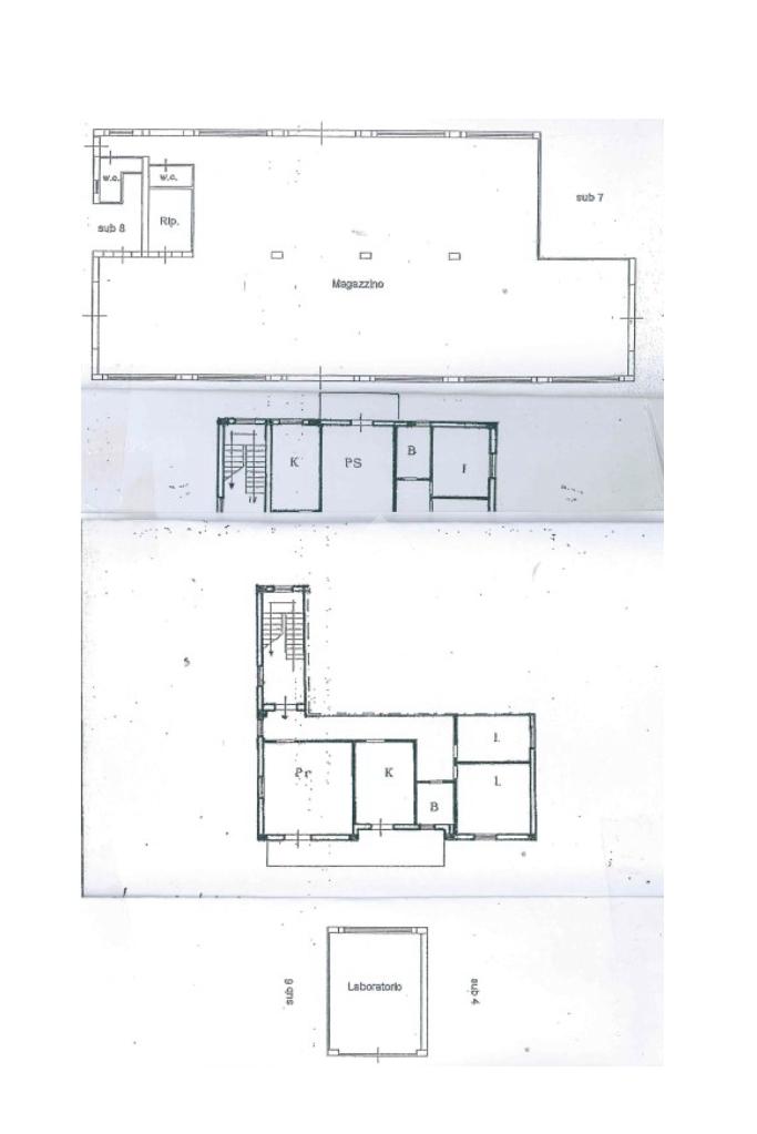
Vendiamo intero fabbricato con corte di mq di esclusiva proprietà dell' immobile.

La soluzione si compone di:

1magazzino ad uso artigianale e/o commerciale e 1magazzino ad uso deposito per un totale di . 400 mq con quattro uscite. Ampia corte recintata di esclusiva pertinenza di .1400 mq e appartamenti posti al primo piano di .120 mq l'uno, che possono essere utilizzati sia come abitazioni che come uffici al servizio dei magazzini.

Il forte flusso veicolare permette la realizzazione di qualsiasi tipo di attività.

L' ubicazione tra la zona industriale e il nuovo ospedale rendono la soluzione ancora piu' interessante.

Per appuntamenti i nostri incaricati sono disponibili dal lunedì al venerdì dalle ore 9.00 alle 13.00 e dalle 16.00 alle 19.30 e il sabato dalle 9.30 alle 12.30 .

A vostra disposizione uno staff di consulenza creditizia in grado di proporvi il mutuo o il finanziamento più adatto alle vostre esigenze.

Contattateci per fissare un incontro gratuito nei nostri uffici. Ogni agenzia ha un proprio titolare ed è autonoma.

Mostra tutto

Nelle vicinanze

Negozi Negozi
P.E.A.M.
2,4 Km
Mostra tutto

Caratteristiche

Rif.:
61063998
Piano:
1 di 2 (Piano su più livelli)
Posti auto:
10
Balconi:
2
Condizionamento:
Autonomo
Ascensore:
No
Mostra tutto
Prezzo Prezzo
€ 420.000
Rata mutuo Rata mutuo
€ 1.983 / mese
Spese annue Spese annue
€ 0
Proponi il tuo prezzoProponi il tuo prezzo

Classe Energetica

D
D
D
D
D
D
D
D
D
EP globale non rinnovabile:
1.00 kW h/m² anno
EP globale rinnovabile:
1.00 kW h/m² anno
EP invernale del fabbricato:
EP estiva del fabbricato:
Anno di costruzione:
1980
Riscaldamento:
Autonomo
Tipo impianto:
Ad aria
Tipo alimentazione:
Altro

Ti interessa visionare l'immobile?

Fissa un appuntamento  Fissa un appuntamento

Richiedi informazioni

Clicca su Leggi per aprire l'informativa
* Questi campi sono obbligatori

Calcola il tuo mutuo

Semplice e senza impegno
Anticipo

( % )
Mutuo

( % )

pochi semplici passi

inserisci i tuoi dati
Questionario completato
Grazie per aver richiesto un appuntamento senza impegno con un nostro Consulente del Credito e Assicurativo.

Hai inserito correttamente tutti i dati necessari e a breve riceverai una e-mail con un link da convalidare per inviare i tuoi dati.
Affiliato
Studio Rossano 1 Srl
Viale Margherita, 213 87064 Corigliano-Rossano (CS)

Il nostro staff


  • Salvatore Ferraro
    Affiliato

  • Maria De Patto
    Collaboratrice
Viale Margherita, 213 87064 Corigliano-Rossano (CS)
Zona: Rossano
Mostra su mappa
Orari: da lunedì al venerdì 08.45 - 13.00 / 15.30 - 19.30; sabato 08.45 - 13.00
Affiliato
Studio Rossano 1 Srl
Viale Margherita, 213 87064 Corigliano-Rossano (CS)

2025 Tecnocasa Franchising S.p.A. - P. IVA 08365160152 - Via Monte Bianco 60/A 20089 Rozzano (MI). Ogni agenzia ha un proprio titolare ed è autonoma. Privacy policy | Policy utilizzo | Cookie policy